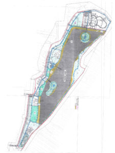
Firma z Warszawy opracuje projekt utworzenia parku zieleni Łąki łan w Nisku. Chodzi o budowę w okolicach zalewu Podwolina strefy zieleni i instalacji do nawadniania terenów z zebranej wody. Mówił o tym burmistrz Niska Waldemar Ślusarczyk:
Co oznacza że wokół zbiornika na Podwolinie pojawi się więcej zieleni:
Wykonawca dokumentacji zadania Łąki łan ma opracować kompleksowy projekt budowlany i techniczny tego przedsięwzięcia obejmujący zarówno projekt zagospodarowania terenu wokół zbiornika obejmujący m.in. projekt architektoniczny i zagospodarowania zieleni oraz projektu instalacji nawadniających. Firma z Warszawy była jedną z trzech, które wystartowały w przetargu na tę inwestycję. Zadanie wykona za kwotę trochę ponad 173,5 tysiąca złotych. Przygotowanie tej inwestycji jest dofinansowane z funduszy norweskich.











